Architetto disponibile per studio e progettazione. Gratuito!

Filtra per tipologia


Cod: LA192


1

2

123 m²

Prezzo: € 495. 000

Richiesta contatto per Cod. LA192

Architetto in Agenzia disponibile per studio e progettazione. Gratuito!

02 70300128

Centro Commerciale, 81
20054 San Felice Segrate (MI)

Novità

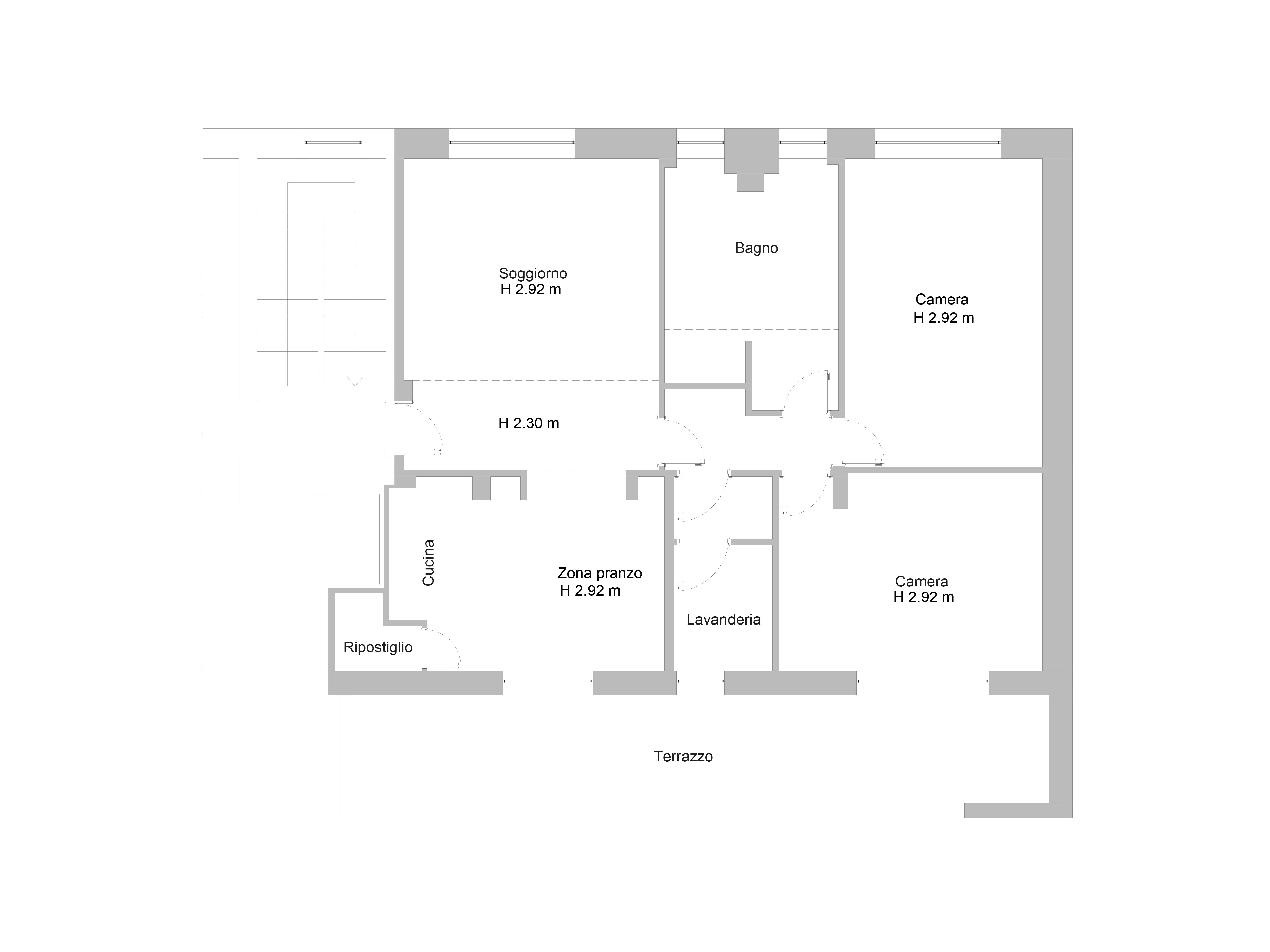
Trilocale con terrazzo ultimo piano Milano zona Turro

Cod. LA192

  • Milano – MM1 TURRO Via Boiardo, in una tranquilla via residenziale a pochi passi dalla metropolitana, proponiamo in vendita in esclusiva un elegante e luminoso appartamento situato al quarto ed ultimo piano di uno stabile ben curato.

    L’abitazione, di circa 115 mq, si distingue per la presenza di uno splendido terrazzo di circa 27 mq e per la doppia esposizione che garantisce una straordinaria luminosità naturale durante tutto l’arco della giornata.

    L’ingresso conduce ad un ampio soggiorno caratterizzato da grandi finestre che valorizzano lo spazio e creano un ambiente accogliente. Dal soggiorno si accede alla cucina con zona pranzo, con accesso diretto sul terrazzo, che garantisce grande luce agli ambienti e una piacevole continuità tra interno ed esterno.  Ideale per momenti di relax all’aperto, pranzi e cene in compagnia.

    La zona notte, ben separata dalla zona giorno tramite un comodo corridoio, è composta da una spaziosa camera matrimoniale, un grande bagno padronale – realizzato dall’unione di due bagni – una seconda camera con accesso diretto al terrazzo e una funzionale zona lavanderia, anch’essa collegata allo spazio esterno.

    Completa la proprietà un locale solaio di circa 13 mq posto nel sottotetto, utile come spazio di deposito.

    È inoltre disponibile un ampio box singolo di circa 19 mq al prezzo di € 40.000.

    La posizione è particolarmente strategica: Via Boiardo si trova in un contesto residenziale tranquillo e ben servito, a pochi passi dalla fermata Turro della linea metropolitana M1, che consente di raggiungere rapidamente il centro di Milano e le principali aree della città.

  • Informazioni finanziarie

    • Prezzo: € 495. 000
    • Spese condominiali: € 375 / mese

    Dettagli

    • Tipologia: Trilocale
    • Superficie commerciale: 123 m²
    • Giardino: Nessuno
    • Condizioni: Buono
    • Stato: Libero al rogito
    • Esposizione: NordSud
    • Piano: 4
    • Totale piani: 4
    • Ascensore: Si
    • Soggiorno: Si
    • Cucina: A vista
    • Numero camere: 2
    • Numero bagni: 1

    Ulteriori dettagli

    • Ripostiglio:
    • Cabina armadio: No
    • Balcone: No
    • Terrazzo: Si
    • Cantina/Solaio: Solaio
    • Box: Singolo
    • Riscaldamento: Centralizzato
    • Acqua calda: Autonoma
    • Infissi: Alluminio doppio vetro
    • Zanzariere: No
    • Camino: No
    • Aria condizionata: Si
    • Pavimenti: Parquet e ceramica
    • Porte: Legno
    • Antifurto: Si
    • Classe energetica: F
    • IPE: 316,86
  • Indirizzo

    Via Matteo Maria Boiardo - Milano
  • Per richiedere la planimetria di questo immobile utilizza la pagina contatti del sito cliccando il bottone qui sotto.

Torna alla lista


Il Quartiere Milano San Felice è a soli 5 minuti dall'aeroporto di Linate, vicino all'imbocco della Brebemi e di tutte le principali tangenziali e autostrade. E' un quartiere dotato di portineria centrale e sorveglianza 24/24H con centro commerciale, ufficio postale, banche e scuole.

Con i mezzi pubblici ATM 923 -901 - 973 - Z409 è possibile raggiungere l'Aeroporto di Linate in pochi minuti. Da Linate, la nuova metropolitana Linea Blu M4 collega il centro città, fermata San Babila, in 15 minuti. Il bus 923 collega anche al passante ferroviario di Segrate, Segrate centro e all'Ospedale San Raffaele.

Centro Commerciale, 81 - 20054 San Felice Segrate (MI)
Tel 02 70300128 - Contatto via form
CF e P.IVA: 09347250962 | R.E.A. 2084774